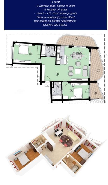
Продажа в Бечичи новой квартиры с одной спальней, 1 этаж, 64 м2

Основные
Уникальный номер объявления:195
Тип сделки:Купить
Тип недвижимости:квартира
Цена:198 400 Продажа
Описание:

Продажа в Бечичи – Новая современная квартира

Объект имеет три уровня подземного гаража, что позволяет купить или арендовать парковочное место в любое время.

Описание и структура:
• Здание имеет 3 подземных уровня гаражей
• Во всех квартирах установлены подогреваемые полы и кондиционер в каждой комнате
• Здание освобождено от налога на передачу недвижимости
• Обслуживание: 0,35 €/м²
• Документы 1/1, без ограничений, ипотеки или обременений

Предложение квартир:
• Площадь: от 58 м² до 107 м²
• Типы: 1, 2 и 3-комнатные квартиры
• Цены: от 2.800 € до 3.900 €/м²

Примеры квартир:
• Однокомнатная квартира (58 м²) — 191.000 €, вид на горы
• Двухкомнатная квартира (103 м²) — 391.400 €

Преимущества:
• Подогреваемые полы и кондиционер в каждой комнате
• Подземная парковка на три уровня
• Освобождено от налога на передачу недвижимости
• Чистая документация 1/1
• Качественное строительство и современная архитектура #d

Общая информация
  • Черногория, Будва/Бечичи
    • Квартира
  • Купить198 400
Объявление опубликовал
Liudmyla Karaulanova
Похожие объявления
^ Наверх